Return To A
partment
s
C
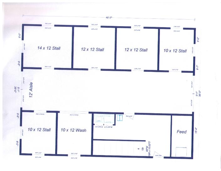
lick For CAD Pictures
Return To 5
Stall Barn
s
Serving The Equestrian Community Since 1991
Barn Guru LLC
Barn Guru LLC
Barn Guru LLC
Serving The Equestrian Community Since 1991
Barn Guru LLC
Barn Guru LLC