
| Equine Barn Company |
| Equine Barn Company |
| Over 100 Years Of Combined Horse Involvement and Construction and Equine Construction Experience |
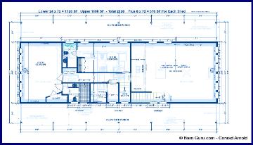
| Buy The Floor Plan, Footing layout, Footing Details and Elevations for $600.00. Need Detailed Framing Plans: Add $400.00 Need Detailed Material List with Georgia Pricing Add $300.00 Add $200.00 to Modify the plan |





















