
| Equine Barn Company |
| Equine Barn Company |
| Over 100 Years Of Combined Horse Involvement and Construction and Equine Construction Experience |










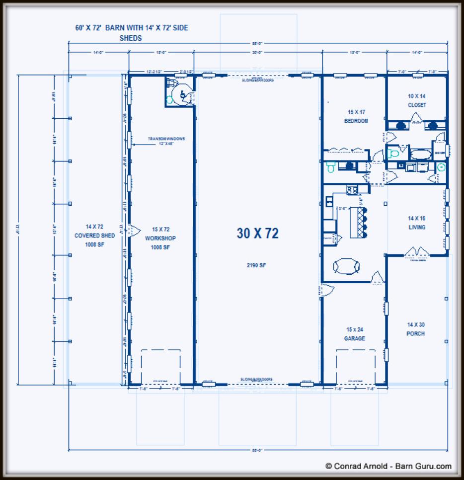
| FRONT |
| FRONT |
| REAR |
| LIVING ROOM ----> |
| <-----BEDROOM ROOM |
| REAR |
| REAR |
| <----WORKSHOP |
| WORKSHOP |
| WORKSHOP |
| FRONT |
| FRONT |
