Equine Barn Company
Equine Barn Company
We Are A
Over 100 Years Of Combined Horse Involvement and Construction and Equine Construction Experience
Any Style, Any Size, From Opulent To Practical, We Build Anything and Everything Equestrian.
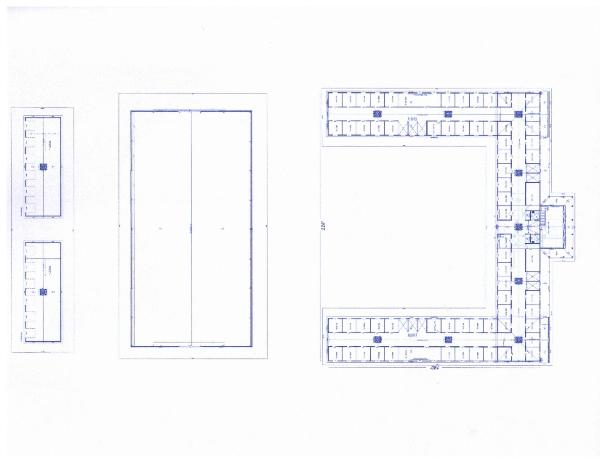
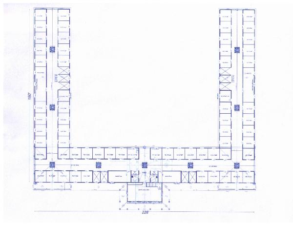
2 bedroom horse barn
Upstairs Apartment
Storage and Garages